
Scopri Allplan: Viste e Sezioni per Progetti Architettonici
Nel mondo dell’architettura, Allplan si distingue per le sue potenti funzionalità di visualizzazione. In questo articolo, esploreremo come le viste e le sezioni possono migliorare la rappresentazione dei progetti e facilitare il lavoro con dettagli complessi.
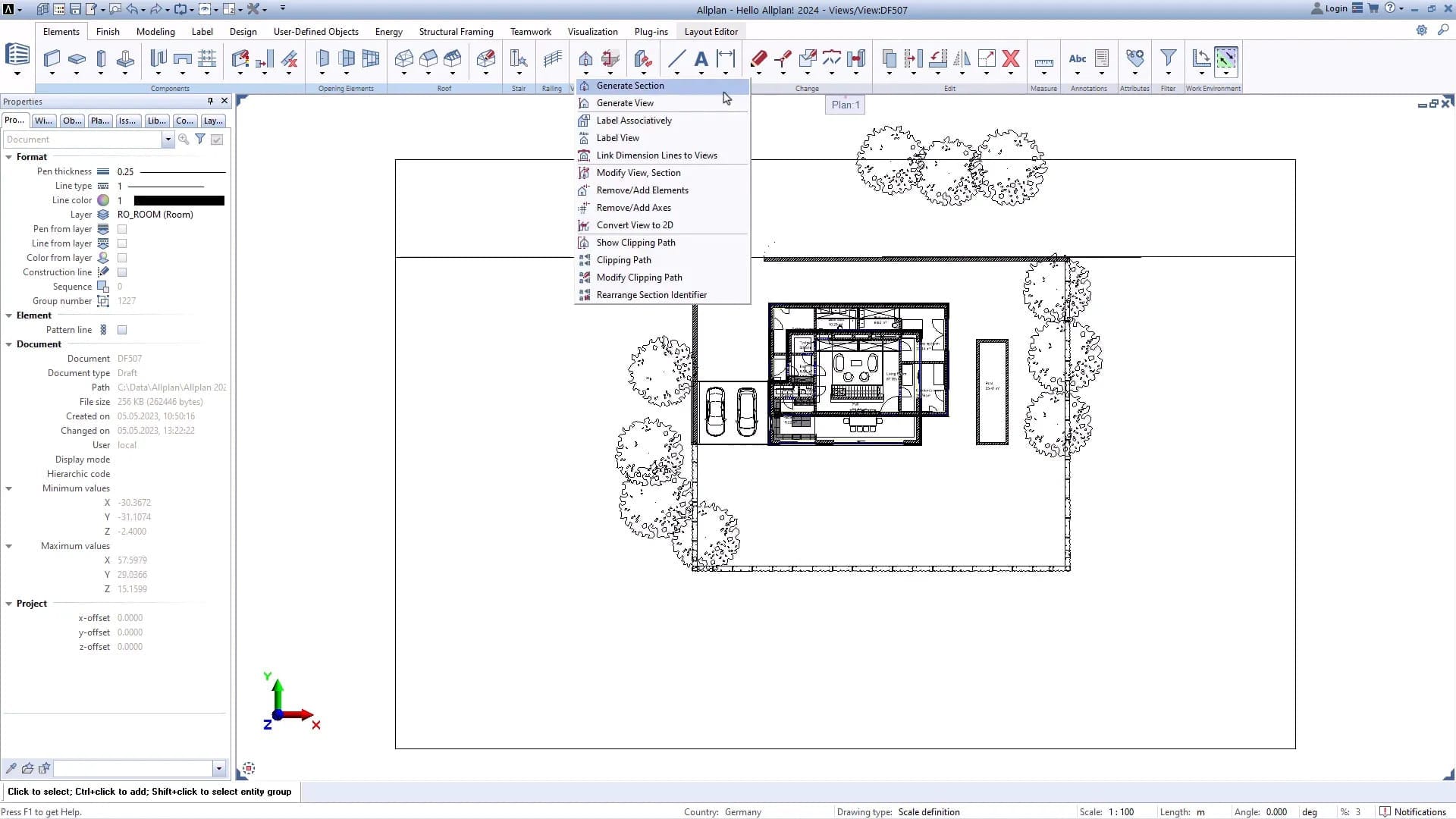
Generazione di Viste nella Struttura dell’Edificio con Allplan
La generazione di viste direttamente nella struttura dell’edificio è una delle funzionalità più apprezzate in Allplan. Questa opzione consente di creare rappresentazioni dettagliate che riflettono accuratamente il progetto architettonico.
Per iniziare, è necessario selezionare le impostazioni della vista, che includono la direzione di visualizzazione. Dopo aver definito queste impostazioni, è possibile procedere con la creazione della vista. È un processo semplice e diretto, che permette di avere immediatamente una visualizzazione chiara del progetto.

Impostazioni della Vista e Direzione di Visualizzazione
Le impostazioni della vista sono fondamentali per ottenere il risultato desiderato. In Allplan, puoi scegliere tra diverse opzioni per adattare la visualizzazione alle tue esigenze specifiche. La direzione di visualizzazione è cruciale, poiché determina come gli elementi saranno percepiti nell’ambiente progettato.
- Selezione della prospettiva: puoi decidere se visualizzare la pianta, l’altezza o una sezione trasversale.
- Personalizzazione degli elementi: puoi includere solo gli elementi necessari per evitare confusione visiva.
- Adattamento della scala: le dimensioni possono essere personalizzate per rendere la vista più chiara e leggibile.
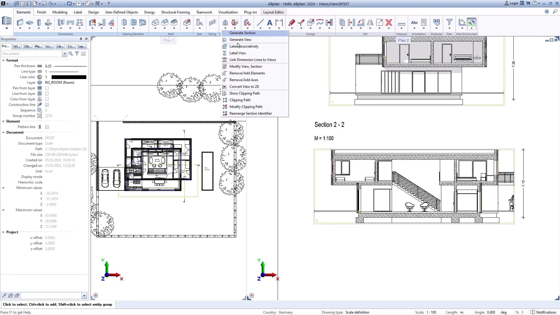
Generazione di Viste e Sezioni nel Layout di Stampa
Un’altra caratteristica potente di Allplan è la generazione di viste e sezioni direttamente nel layout di stampa. Questo approccio offre una maggiore flessibilità e controllo sulla presentazione finale dei progetti.
Quando si lavora nel layout di stampa, puoi definire le viste in modo libero o selezionando specifiche superfici. Questo approccio rende il lavoro con componenti ed elementi complessi molto più gestibile.

Definizione Libera delle Viste
La definizione libera delle viste è una funzionalità che consente di personalizzare ulteriormente la rappresentazione del progetto. Puoi decidere quali elementi includere e come disporli, creando così una presentazione unica e su misura per le tue esigenze.
- Selezione degli elementi: scegli quali componenti visualizzare per mettere in evidenza le caratteristiche chiave del progetto.
- Creazione di sezioni: puoi realizzare sezioni orizzontali o verticali a tuo piacimento, a seconda delle necessità del progetto.
- Visualizzazione animata: Allplan offre la possibilità di visualizzare le sezioni in modo animato, rendendo più dinamica la presentazione.

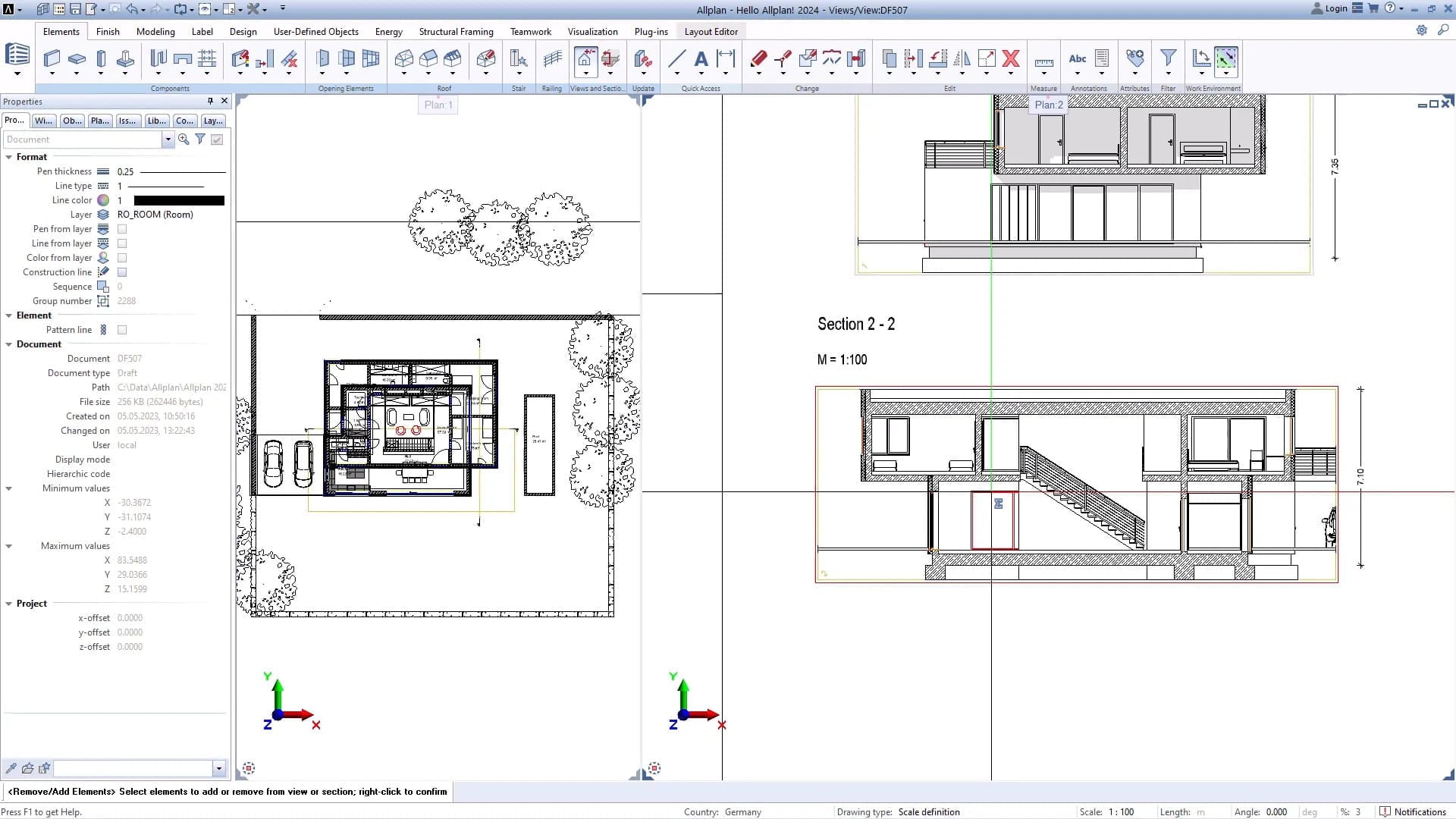
Modifiche e Personalizzazioni delle Viste
Un vantaggio significativo di Allplan è la possibilità di modificare le sezioni e le viste in qualsiasi momento. Questo ti consente di adattare continuamente il tuo lavoro alle esigenze del progetto e ai feedback ricevuti.
Le etichette e le dimensioni possono essere personalizzate in base alla scala del progetto, rendendo ogni vista chiara e informativa. È anche possibile rimuovere o aggiungere elementi per migliorare la rappresentazione.

Sezioni Complesse a Profondità Multipla
In Allplan, puoi creare sezioni più complesse a profondità multipla, sia verticalmente che orizzontalmente. Questa funzionalità è particolarmente utile per progetti che richiedono una visione approfondita di vari livelli e dettagli.
- Sezioni verticali: adatte per rappresentare dettagli di piani diversi all’interno dello stesso edificio.
- Sezioni orizzontali: utili per mostrare la distribuzione degli spazi e la relazione tra i vari ambienti.

Creazione di Sezioni Orizzontali e Verticali
Le sezioni sono strumenti fondamentali in Allplan per visualizzare la struttura di un edificio. Creare sezioni orizzontali e verticali permette di ottenere una comprensione approfondita del progetto.
Quando si decide di realizzare una sezione, è importante considerare l’orientamento e la posizione. Questo influenzerà non solo l’aspetto della sezione, ma anche le informazioni che verranno mostrate.

Sezioni Orizzontali
Le sezioni orizzontali sono particolarmente utili per analizzare la distribuzione degli spazi interni. Consentono di osservare come i vari ambienti interagiscono tra loro, offrendo una visione chiara della disposizione.
- Visualizzazione dei pavimenti: puoi vedere come i diversi livelli si sovrappongono e come sono collegati.
- Analisi della luce naturale: le sezioni orizzontali aiutano a comprendere come la luce penetra negli spazi.
- Dettagli architettonici: evidenziare le caratteristiche strutturali come travi e colonne.
Sezioni Verticali
Le sezioni verticali, d’altra parte, sono ideali per mostrare la relazione tra i vari piani di un edificio. Forniscono una visione diretta dell’altezza e della volumetria degli spazi.
- Rappresentazione dei piani: è possibile vedere chiaramente come i piani si allineano e si sovrappongono.
- Dettagli costruttivi: le sezioni verticali mettono in luce particolari costruttivi e materiali utilizzati.
- Flusso di movimento: comprendere come le persone si muovono attraverso lo spazio.

Visualizzazione e Rendering delle Sezioni in Animazione
Una delle caratteristiche più innovative di Allplan è la possibilità di visualizzare e rendere le sezioni in animazione. Questo approccio offre un’esperienza interattiva e coinvolgente.
Il rendering animato consente di esplorare le sezioni in modo dinamico, mostrando i dettagli in movimento. Questo è particolarmente utile per presentazioni a clienti o per l’analisi interna del progetto.

Vantaggi del Rendering Animato
- Interattività: gli utenti possono navigare attraverso le sezioni, esplorando dettagli specifici.
- Impatto visivo: l’animazione rende le presentazioni più coinvolgenti e memorabili.
- Chiarezza: mostrare come gli spazi si collegano e si intersecano rende la comprensione più immediata.
Modifiche alle Sezioni e Viste
Allplan offre una grande flessibilità nelle modifiche delle sezioni e delle viste. Questa funzionalità è cruciale per adattarsi alle esigenze in continua evoluzione di un progetto.
È possibile modificare le dimensioni, le etichette e persino rimuovere o aggiungere elementi con facilità. Questo assicura che le rappresentazioni siano sempre aggiornate e pertinenti.

Personalizzazione delle Etichette e Dimensioni
Le etichette e le dimensioni possono essere adattate in base alla scala del progetto. La personalizzazione è fondamentale per garantire che ogni vista trasmetta le informazioni necessarie in modo chiaro e conciso.
- Dimensionamento preciso: regolare le dimensioni in base alla scala per migliorare la leggibilità.
- Etichette informative: aggiungere etichette che chiariscano il contenuto delle sezioni e delle viste.
- Rimozione di elementi superflui: semplificare le viste per evitare confusione visiva.
Adattamento di Etichette e Dimensioni
Adattare etichette e dimensioni è essenziale per comunicare chiaramente le intenzioni progettuali. Allplan consente di modificare questi elementi in tempo reale, facilitando il processo di revisione.
Questa flessibilità ti permette di presentare il progetto in modi che rispondano meglio alle esigenze del cliente o del team di lavoro.

Strategie per un’Etichettatura Efficace
- Coerenza: mantenere uno stile uniforme per tutte le etichette per migliorare la professionalità del progetto.
- Chiarezza: utilizzare un linguaggio semplice e diretto nelle etichette per evitare ambiguità.
- Posizionamento strategico: posizionare le etichette in modo che siano facilmente visibili e non sovrapposte ad altri elementi.
Conclusione e Invito a Scoprire di Più su Allplan
In sintesi, Allplan offre strumenti avanzati per la creazione e la gestione di viste e sezioni, essenziali per il successo di un progetto architettonico. La flessibilità nelle modifiche e la possibilità di personalizzare ogni aspetto della visualizzazione rendono Allplan una scelta ideale per architetti e progettisti.
È fondamentale sfruttare al massimo le funzionalità offerte, come la generazione di sezioni complesse e il rendering animato, per presentare il proprio lavoro in modo chiaro e professionale. Non dimenticare di esplorare le varie opzioni di personalizzazione per adattare le tue presentazioni alle esigenze specifiche del tuo pubblico.

Perché Scegliere Allplan?
- Innovazione: Allplan è all’avanguardia nelle tecnologie di progettazione, garantendo strumenti sempre aggiornati.
- Interattività: Le funzionalità di rendering animato e visualizzazione interattiva offrono un’esperienza unica.
- Adattabilità: Le opzioni di personalizzazione rendono Allplan perfetto per ogni progetto, grande o piccolo.
Con Allplan sempre al massimo
Tutto quello che hai sempre voluto oggi è realtà
FAQ su Allplan
Quali sono le principali funzionalità di Allplan?
Allplan offre una vasta gamma di funzionalità, tra cui la generazione di viste e sezioni, il rendering animato e la personalizzazione delle etichette e dimensioni.
È possibile utilizzare Allplan per progetti di grandi dimensioni?
Sì, Allplan è progettato per gestire progetti di qualsiasi dimensione, offrendo strumenti scalabili e flessibili.
Allplan supporta la collaborazione tra team?
Assolutamente! Allplan facilita la collaborazione tra diversi membri del team, consentendo modifiche simultanee e feedback in tempo reale.
Come posso iniziare a utilizzare Allplan?
Puoi iniziare richiedendo una demo o una versione di prova di Allplan sul sito ufficiale. Questo ti permetterà di esplorare tutte le funzionalità e capire come possono essere integrate nel tuo flusso di lavoro.



